Courtesy of Geet Singh/Century 21 AAA Realty Inc.

702 588 BROUGHTON STREET, Condo for sale in Vancouver West Vancouver , BC , V6G 3E3

 MLS® # R3080192

2 bedrooms

2 bathrooms

958 sqft

Sign up to View

Days on Market

Bike Room Exercise Centre Caretaker Trash Maintenance Grounds Hot Water Management Recreation Facilities Sewer Snow Removal

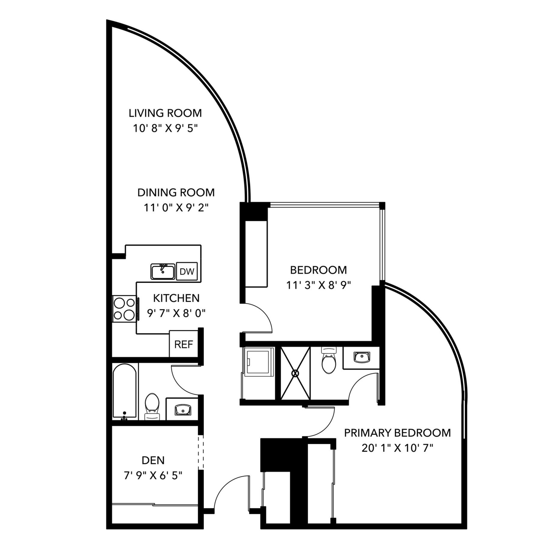
Stunning unobstructed views of Coal Harbour, the marina, Stanley Park & North Shore Mountains. Renovated in 2022, this bright and modern 2-bed + den home features an open-concept layout, expansive windows, granite countertops, wood cabinetry, and stainless steel appliances. Includes oversized parking and a large storage locker. Resort-style amenities: gym, pool, hot tub, rooftop deck, 24-hr security & on-site manager. Steps to waterfront, dining, shopping & entertainment

Essential Information

  • MLS® #
    R3080192
  • Full Baths
    2
  • Year Built
    1995
  • Property Type
    Multi Family
    Residential Attached
  • Building Type
    Apartment/Condo
  • MLS® #
    R3080192
  • Full Baths
    2
  • Year Built
    1995
  • Property Type
    Multi Family, Residential Attached
  • Building Type
    Apartment/Condo
  • MLS® #
    R3080192
  • Full Baths
    2
  • Year Built
    1995
  • Property Type
    Multi Family
    Residential Attached
  • Building Type
    Apartment/Condo

Community Information

  • Area
    Vancouver West
  • Sub-Area/Community
    Coal Harbour
  • Postal Code
    V6G 3E3
  • Area
    Vancouver West
  • Sub-Area/Community
    Coal Harbour
  • Postal Code
    V6G 3E3
  • Area
    Vancouver West
  • Sub-Area/Community
    Coal Harbour
  • Postal Code
    V6G 3E3

Services & Amenities

  • Amenities
    Bike Room
    Exercise Centre
    Caretaker
    Trash
    Maintenance Grounds
    Hot Water
    Management
    Recreation Facilities
    Sewer
    Snow Removal
  • View
    true
  • Amenities
    Bike Room, Exercise Centre, Caretaker, Trash, Maintenance Grounds, Hot Water, Management, Recreation Facilities, Sewer, Snow Removal
  • View
    true
  • Amenities
    Bike Room
    Exercise Centre
    Caretaker
    Trash
    Maintenance Grounds
    Hot Water
    Management
    Recreation Facilities
    Sewer
    Snow Removal
  • View
    true

Interior

  • Basement
    false
  • Storeys
    1
  • Floor Area Fin - Main Flr
    958
  • Floor Area - Grand Total
    958
  • Fireplaces
    false
  • Basement
    false
  • Storeys
    1
  • Floor Area Fin - Main Flr
    958
  • Floor Area - Grand Total
    958
  • Fireplaces
    false
  • Basement
    false
  • Storeys
    1
  • Floor Area Fin - Main Flr
    958
  • Floor Area - Grand Total
    958
  • Fireplaces
    false

Additional Info

  • Strata Maintenance Fees
    679.39
  • Title
    Freehold Strata
  • Site Influences
    Central Location
    Marina Nearby
    Recreation Nearby
  • Storeys in Building
    26
  • Strata Maintenance Fees
    679.39
  • Title
    Freehold Strata
  • Site Influences
    Central Location, Marina Nearby, Recreation Nearby
  • Storeys in Building
    26
  • Strata Maintenance Fees
    679.39
  • Title
    Freehold Strata
  • Site Influences
    Central Location
    Marina Nearby
    Recreation Nearby
  • Storeys in Building
    26

$975,000

702 588 BROUGHTON STREET

Schedule Tour
Contact Agent

$4440/month
Est. Monthly Payment
$
$
%
Learn More