Courtesy of Tina Mak PREC*/Macdonald Realty
MLS® # R3069445
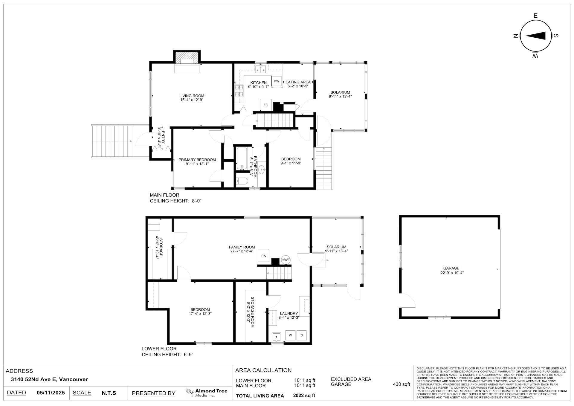
First time on the market! Located in quiet Killarney neighbourhood in East Van, a central location of lower mainland. Well-kept 2000 sqft home w/ a solarium on the south side offers a cozy & warm atmosphere. An over 4000 sqft lot with laneway access has great potential for builders and developers. Mins walk to Killarney Park, Killarney Community Centre, and Champlain Square strip mall. Less than 10-min drive to Metrotown, Central Park, Fraserview Golf Course, Joyce-Collingwood area and more. Captain James C...