Courtesy of Jeevan Gill/Rennie & Associates Realty Ltd.
MLS® # R3114773
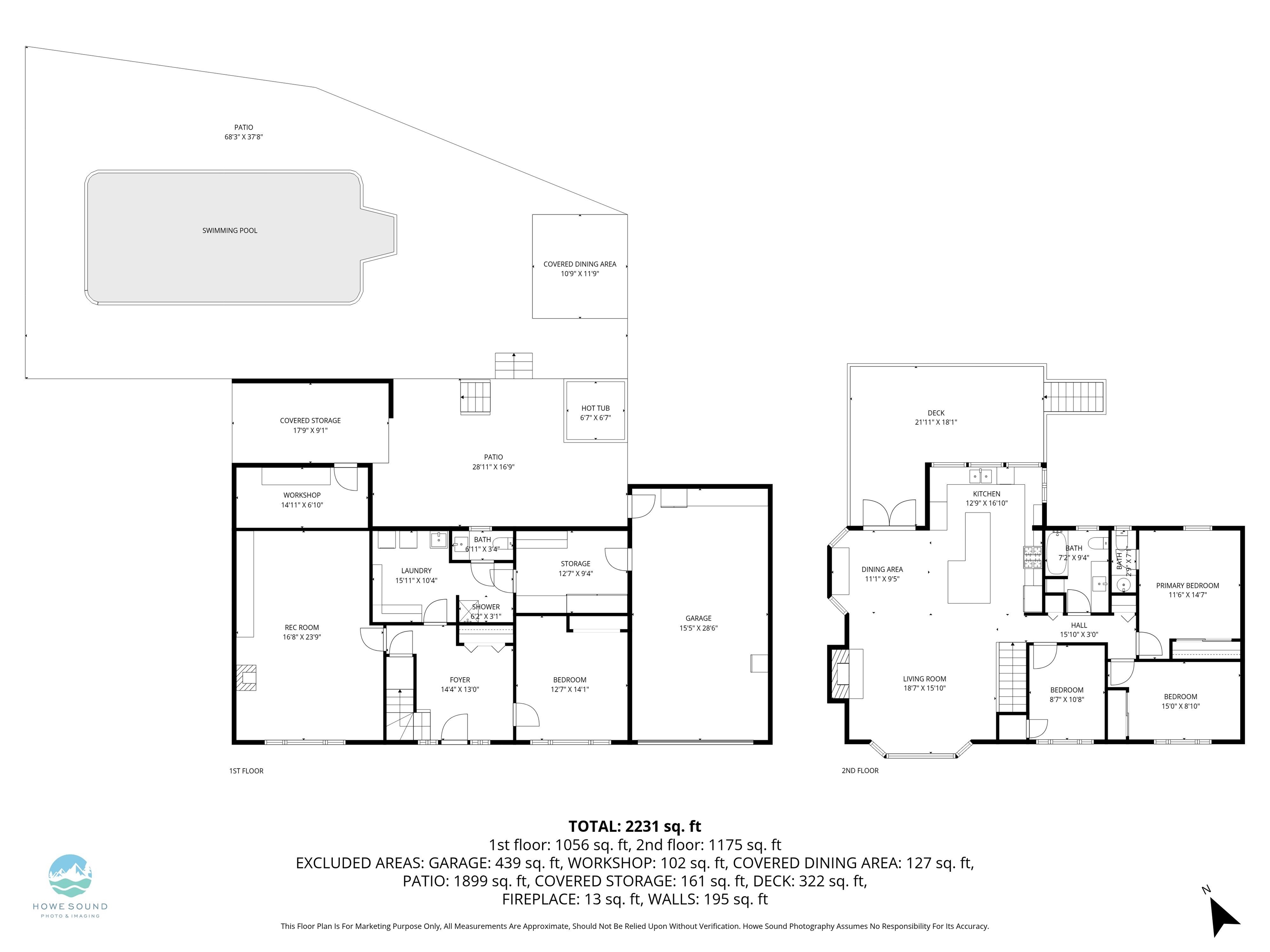
First time in 50 years, this well maintained family home is available. Held by the same family for half a century, this residence radiates pride of ownership and sits on a quiet, sought-after cul-de-sac in the heart of the Highlands. The interior features an upgraded kitchen,bathroom,new gas and woodburning fireplace. Outside, your private oasis awaits: a large backyard featuring a sparkling pool and hottub—the ultimate summer retreat for kids and adults alike. Adventure seekers will appreciate the rare, ov...