Courtesy of Kendall Ayres/Sutton Group Seafair Realty

2409 1277 HORNBY STREET, Condo for sale in Vancouver West Vancouver , BC , V6Z 1W2

 MLS® # R3088001

1 bedrooms

1 bathrooms

502 sqft

Sign up to View

Days on Market

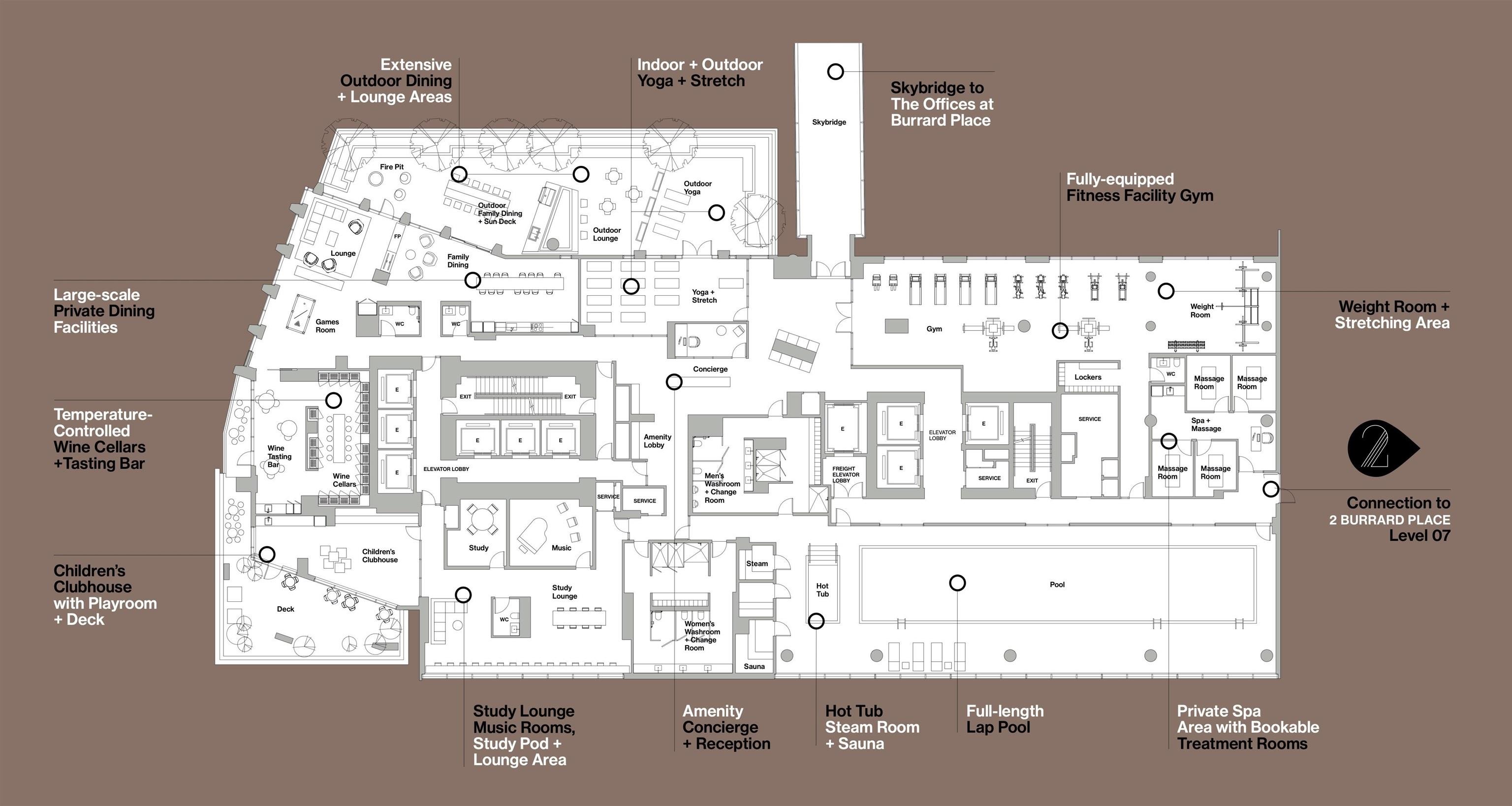
Clubhouse Exercise Centre Sauna/Steam Room Concierge Caretaker Trash Maintenance Grounds Gas Heat Hot Water Management Recreation Facilities Snow Removal

Experience unmatched luxury at 2 Burrard Place. This stunning 2-bedroom home showcases Euroluxe interiors inspired by global design capitals. Enjoy comfort and design with A/C, wide-plank hardwood floors and a sleek MITON Italian kitchen with premium GAGGENAU appliances. Integrated KICO wardrobes and spa-inspired bathrooms, heated floors and CIELO fixtures add to the elegance. Residents access 30,000 sq. ft. of Club One amenities, including a fitness centre, indoor pool, spa and concierge. Steps from top di...

Read More

Essential Information

  • MLS® #
    R3088001
  • Full Baths
    1
  • Year Built
    2026
  • Property Type
    Multi Family
    Residential Attached
  • Building Type
    Apartment/Condo
  • MLS® #
    R3088001
  • Full Baths
    1
  • Year Built
    2026
  • Property Type
    Multi Family, Residential Attached
  • Building Type
    Apartment/Condo
  • MLS® #
    R3088001
  • Full Baths
    1
  • Year Built
    2026
  • Property Type
    Multi Family
    Residential Attached
  • Building Type
    Apartment/Condo

Community Information

  • Area
    Vancouver West
  • Sub-Area/Community
    Downtown VW
  • Postal Code
    V6Z 1W2
  • Area
    Vancouver West
  • Sub-Area/Community
    Downtown VW
  • Postal Code
    V6Z 1W2
  • Area
    Vancouver West
  • Sub-Area/Community
    Downtown VW
  • Postal Code
    V6Z 1W2

Services & Amenities

  • Amenities
    Clubhouse
    Exercise Centre
    Sauna/Steam Room
    Concierge
    Caretaker
    Trash
    Maintenance Grounds
    Gas
    Heat
    Hot Water
    Management
    Recreation Facilities
    Snow Removal
  • Amenities
    Clubhouse, Exercise Centre, Sauna/Steam Room, Concierge, Caretaker, Trash, Maintenance Grounds, Gas, Heat, Hot Water, Management, Recreation Facilities, Snow Removal
  • Amenities
    Clubhouse
    Exercise Centre
    Sauna/Steam Room
    Concierge
    Caretaker
    Trash
    Maintenance Grounds
    Gas
    Heat
    Hot Water
    Management
    Recreation Facilities
    Snow Removal

Interior

  • Basement
    false
  • Storeys
    1
  • Floor Area Fin - Main Flr
    502
  • Floor Area - Grand Total
    502
  • Basement
    false
  • Storeys
    1
  • Floor Area Fin - Main Flr
    502
  • Floor Area - Grand Total
    502
  • Basement
    false
  • Storeys
    1
  • Floor Area Fin - Main Flr
    502
  • Floor Area - Grand Total
    502

Additional Info

  • Strata Maintenance Fees
    0.01
  • Title
    Freehold Strata
  • Site Influences
    Central Location
    Marina Nearby
    Recreation Nearby
  • Storeys in Building
    36
  • Strata Maintenance Fees
    0.01
  • Title
    Freehold Strata
  • Site Influences
    Central Location, Marina Nearby, Recreation Nearby
  • Storeys in Building
    36
  • Strata Maintenance Fees
    0.01
  • Title
    Freehold Strata
  • Site Influences
    Central Location
    Marina Nearby
    Recreation Nearby
  • Storeys in Building
    36

$1,019,445

2409 1277 HORNBY STREET

Schedule Tour
Contact Agent

$4643/month
Est. Monthly Payment
$
$
%
Learn More