Courtesy of Kathy Xu PREC*/RE/MAX Crest Realty

22 6333 NO. 1 ROAD, Townhouse for sale in Richmond Richmond , BC , V7C 1T4

 MLS® # R3064035

3 bedrooms

2 bathrooms

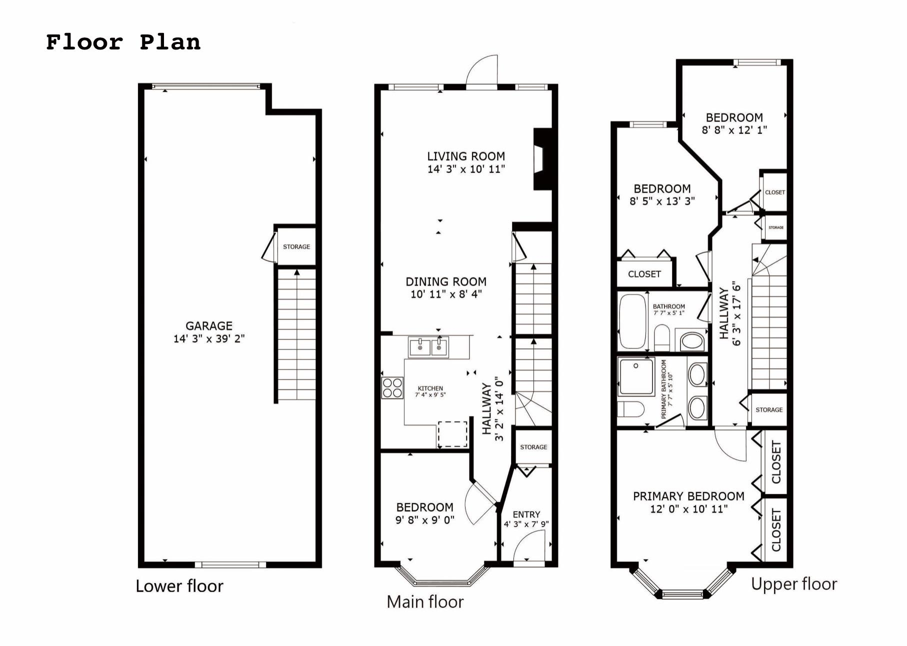
1,522 sqft

Sign up to View

Days on Market

Clubhouse Recreation Facilities Maintenance Grounds Management

Welcome to this bright and spacious 3-level townhouse! located in a well maintained complex in the preferred Terra Nova subarea! This quiet inside unit with 1270 sf finished living space and option to add another 250 sf living space from tandem garage; Features 3 bedrooms 2 bath upstairs and a large den on main which could serve as a 4th bedroom. Lots of windows , living room with glass door leading to good sized balcony; Lots of recent upgrades: new flooring, new paint, new refrigerator and dishwasher and ...

Read More

Essential Information

  • MLS® #
    R3064035
  • Full Baths
    2
  • Year Built
    1998
  • Property Type
    Residential Attached
  • Building Type
    Townhouse
  • MLS® #
    R3064035
  • Full Baths
    2
  • Year Built
    1998
  • Property Type
    Residential Attached
  • Building Type
    Townhouse
  • MLS® #
    R3064035
  • Full Baths
    2
  • Year Built
    1998
  • Property Type
    Residential Attached
  • Building Type
    Townhouse

Community Information

  • Area
    Richmond
  • Sub-Area/Community
    Terra Nova
  • Postal Code
    V7C 1T4
  • Area
    Richmond
  • Sub-Area/Community
    Terra Nova
  • Postal Code
    V7C 1T4
  • Area
    Richmond
  • Sub-Area/Community
    Terra Nova
  • Postal Code
    V7C 1T4

Services & Amenities

  • Amenities
    Clubhouse
    Recreation Facilities
    Maintenance Grounds
    Management
  • Amenities
    Clubhouse, Recreation Facilities, Maintenance Grounds, Management
  • Amenities
    Clubhouse
    Recreation Facilities
    Maintenance Grounds
    Management

Interior

  • Basement
    false
  • Storeys
    3
  • Floor Area Fin - Main Flr
    659
  • Floor Area - Grand Total
    1522
  • Fireplaces
    true
  • Basement
    false
  • Storeys
    3
  • Floor Area Fin - Main Flr
    659
  • Floor Area - Grand Total
    1522
  • Fireplaces
    true
  • Basement
    false
  • Storeys
    3
  • Floor Area Fin - Main Flr
    659
  • Floor Area - Grand Total
    1522
  • Fireplaces
    true

Additional Info

  • Strata Maintenance Fees
    431.07
  • Title
    Freehold Strata
  • Features Included
    Gas
  • Site Influences
    Central Location
    Near Golf Course
  • Strata Maintenance Fees
    431.07
  • Title
    Freehold Strata
  • Features Included
    Gas
  • Site Influences
    Central Location, Near Golf Course
  • Strata Maintenance Fees
    431.07
  • Title
    Freehold Strata
  • Features Included
    Gas
  • Site Influences
    Central Location
    Near Golf Course

$1,058,000

22 6333 NO. 1 ROAD

Schedule Tour
Contact Agent

$4818/month
Est. Monthly Payment
$
$
%
Learn More