Courtesy of Deanna Lawrence PREC*/Oakwyn Realty Ltd.
MLS® # R3060310
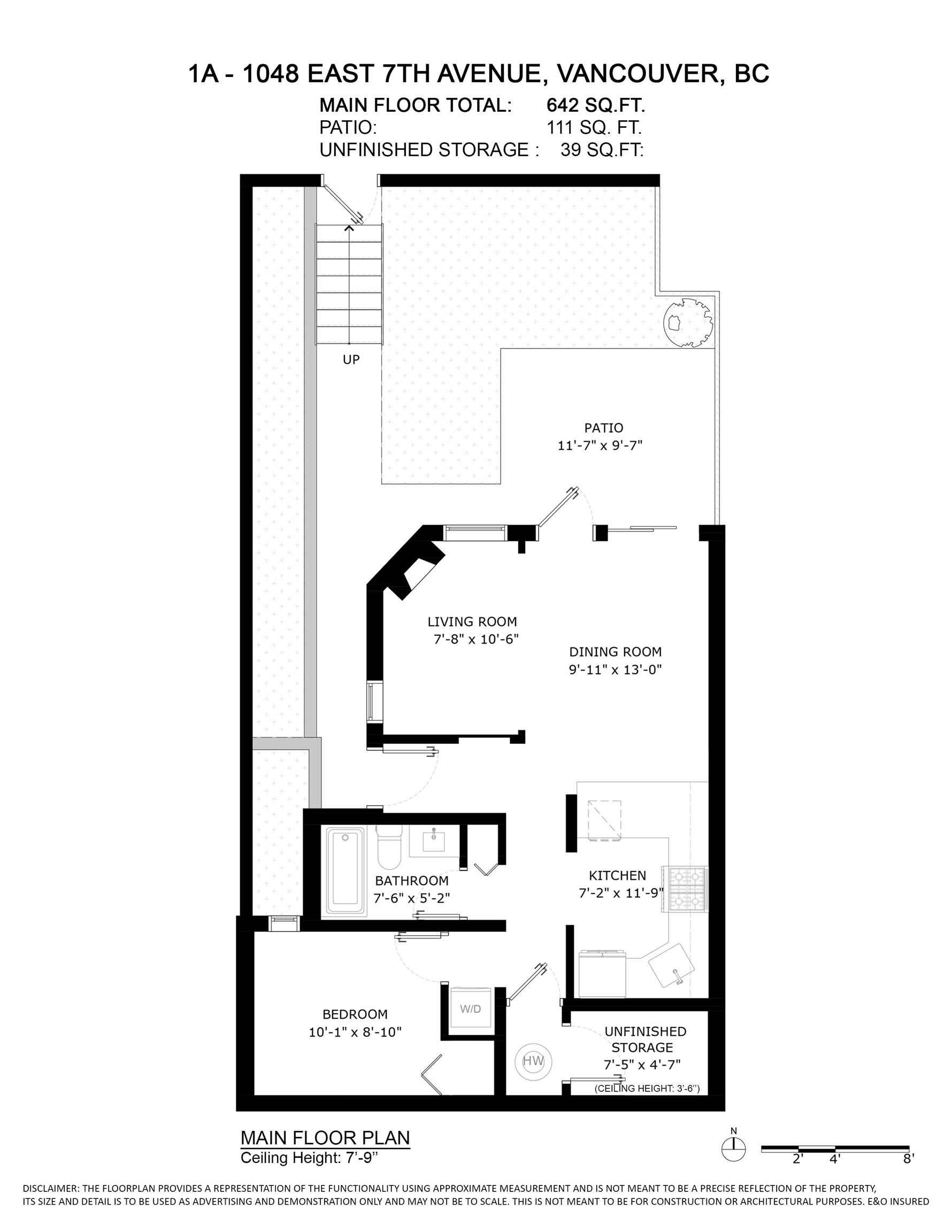
Welcome to Windsor Gardens; a boutique building with just 12 units, offering a rare opportunity to own a true garden-level home with two separate entrances. This beautifully updated 1 bed, 1 bath condo features a large fenced yard with a private patio—perfect for outdoor living or gardening. Enjoy the open living & dining area with hardwood floors, large windows, and a cozy gas fireplace. The kitchen has been upgraded with new backsplash and countertops, S/S appliances, and tiled floors that have been updat...